9832-9970 SWANSON STREET, Fort St. John, British Columbia

Print
Real estate listing
Real estate listing
Real estate listing
Investment Highlights
  • - Land Size: 667,408.5 Sqft
  • - Building Size: 666,032 Sqft
  • - Sale type: For sale
  • - Propert type: Industrial
  • - MLS® Listing ID: C8061755
  • - Brokerage: Century 21 Energy Realty
Executive Summary
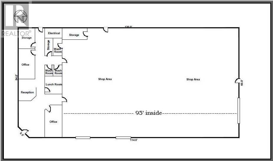
Great investment property with Great visibility for your business! 2 shops located off airport road with 15.29 acres Light Industrial Zoning in the PRRD jurisdiction. 9914 is currently vacant, 9970 has longer term tenant currently on a month to month agreement and 9830 is vacant parcel The North shop, 9970, is 50'x140' (7,000 sq. ft.) plus there is a 1,000 sq. ft. mezzanine, 3 - 16'x16' doors, a 12'x16' and a 20'x16' door. There is 3 phase power to the North shop that also feeds the yard and 2 power sheds. Water is shared well with 9914 shop plus cistern back up. Both shops have separate septic tanks. The second shop, 9914, is 60'x120' (7,182 sq. ft.) with 1,440 sq. ft. of office space. The shop is single phase power and has 2 - 8'x8' & a 14'x14' door with 2nd 14'X14' door being added. The yard is all fenced & graveled with lighting. Property could be subdivided further. 9830 is a vacant 5.73 acre parcel on South side that could be used for extra yard space or a third shop location * PREC - Personal Real Estate Corporation (id:51303)
Price
$4,590,000
company main logo
Map

You may also like

Subscribe to Focused Industrial for exclusive listing opportunities, market trends and more.
Copyright © Focused Industrial
Royal LePage Westside Klein Group
Copyright © Focused Industrial
Royal LePage Westside Klein Group