4385 CANADA WAY, Burnaby, British Columbia

Print
Real estate listing
Real estate listing
Real estate listing
Investment Highlights
  • - Land Size: 31,200 Sqft
  • - Building Size: - Sqft
  • - Sale type: For lease
  • - Propert type: Industrial
  • - MLS® Listing ID: C8060509
  • - Brokerage: Magsen Realty Inc.
Executive Summary
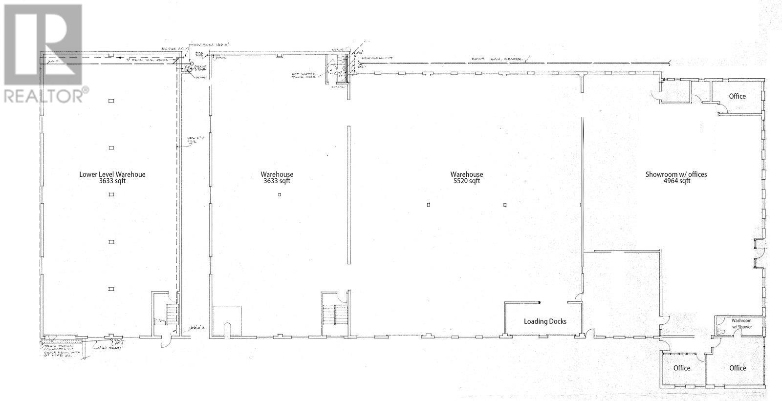
Rare find prime location free-standing retail & warehouse in central Burnaby, Main floor is 14100 sqft features over 3000 sqft showroom, extensive front glazing, 2 private offices, washroom and loading dock. Lower floor is 3633 sqft with grade door and 3-phase power. This warehouse building is situated on the north side of the busy Canada Way corridor in Burnaby, one block west of Willingdon Avenue, the building is centrally located with east access from Highway #1, Lougheed Highway and Kingsway corridor. M1 zoning. (id:51303)
Price
$21.5
company main logo
Map

You may also like

Subscribe to Focused Industrial for exclusive listing opportunities, market trends and more.
Copyright © Focused Industrial
Royal LePage Westside Klein Group
Copyright © Focused Industrial
Royal LePage Westside Klein Group