295 Arvin Avenue, Stoney Creek, Ontario

Print
Real estate listing
Real estate listing
Real estate listing
Investment Highlights
  • - Land Size: 0 x 0
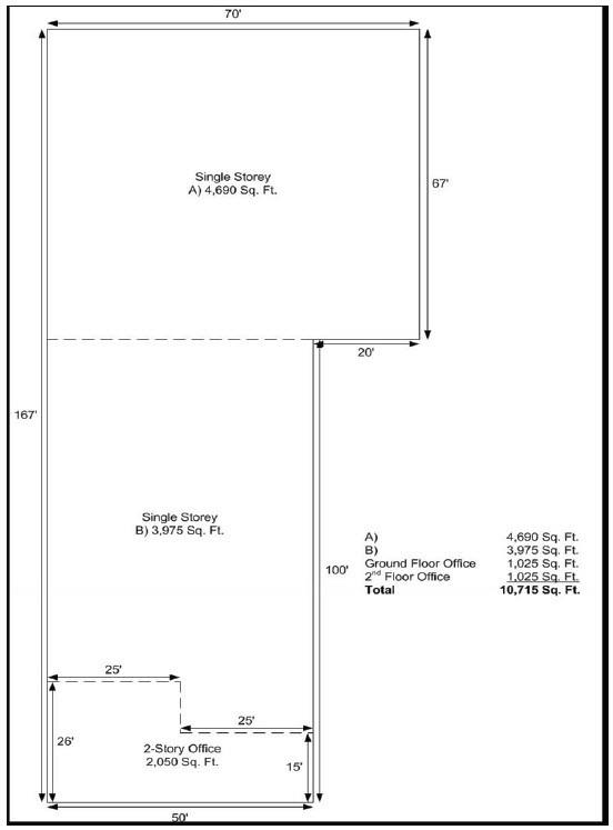
  • - Building Size: 10,715 Sqft
  • - Sale type: For sale
  • - Propert type: Industrial
  • - MLS® Listing ID: H4195411
  • - Brokerage: Colliers Macaulay Nicolls Inc.
Executive Summary
Coveted free-standing industrial building in the heart of the Stoney Creek Business Park. Highly functional layout with 1-ton and 2-ton cranes, heavy power, and large drive-in access. Pristine shop area with many recent renovations completed including roof replacement in 2022 and asphalt re-paving in 2023. Well-connected and strategic location between GTA and US Niagara border with easy access to QEW, Redhill Pkwy., and Nicola Tesla Blvd. (id:51303)
Price
$2,895,000
company main logo
Map

You may also like

438 DEWITT Road, Stoney Creek, Ontario
Price: 2,850,000$
Land Size: 41 Sqft
Building Size: 41 Sqft
345 Dosco Drive, Stoney Creek, Ontario
Price: 2,799,000$
Land Size: 28 Sqft
Building Size: 10 Sqft
195 Barton Street, Stoney Creek, Ontario
Price: 2,200,000$
Land Size: 22 Sqft
Building Size: 8 Sqft
Subscribe to Focused Industrial for exclusive listing opportunities, market trends and more.
Copyright © Focused Industrial
Royal LePage Westside Klein Group
Copyright © Focused Industrial
Royal LePage Westside Klein Group