15712 112 AV NW NW, Edmonton, Alberta

Print
Real estate listing
Real estate listing
Real estate listing
Investment Highlights
  • - Land Size: Inquire Details
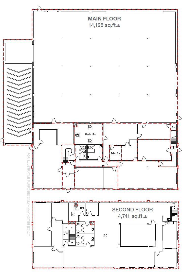
  • - Building Size: 18,869 Sqft
  • - Sale type: For sale
  • - Propert type: Industrial
  • - MLS® Listing ID: E4375562
  • - Brokerage: undefined
Executive Summary
18,869 sq.ft. comprised of 14,128 sq.ft. main floor and 4,741 sq.ft. second floor office, for a total main building size of 18,869 sq.ft.. 760 sq.ft. storage building included in sale. Fenced and secured parking lot or storage area. Recessed dock loading and three 12 x 12 grade loading doors. Second Floor was extensively renovated in 2015 and includes reception, 5 offices, boardroom, large bullpen area, lunchroom and washrooms. Has easy access to 156 Street and Yellowhead Trail and close proximity to public transportation. 3 phase industrial power (to be confirmed by buyer). Ceiling height of 14 - 16 clear span. (id:51303)
Price
$2,750,000
company main logo
Map

You may also like

11433 154 ST NW, Edmonton, Alberta
Price: 4,380,000$
Land Size: 155 Sqft
Building Size: 12 Sqft
6040-6048 97 ST SE, Edmonton, Alberta
Price: 4,250,000$
Land Size: 50 Sqft
Building Size: 40 Sqft
Subscribe to Focused Industrial for exclusive listing opportunities, market trends and more.
Copyright © Focused Industrial
Royal LePage Westside Klein Group
Copyright © Focused Industrial
Royal LePage Westside Klein Group